Local comercial en venta

Alcorcón, Centro - Ondarreta - Torres Bellas
145.000 €
1 dormitorio 1 dormitorio
66 m2 66 m2
2 baños 2 baños

Local comercial en venta

Alcorcón, Centro - Ondarreta - Torres Bellas

Descripción anuncio

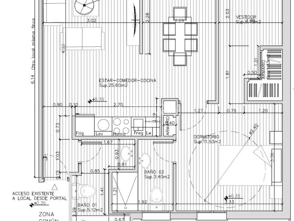
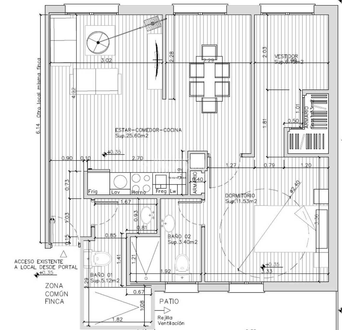
Agencia inmobiliaria de ALCORCÓN zona METRO PARQUE LISBOA - MAYESI - CANTARRANAS Oficina Tecnocasa de ALCORCÓN vende local para reformar con PROYECTO ya presentado en Ayuntamiento para solicitud de cambio de uso a vivienda. El local se encuentra situado a 300 metros del metro sur Parque Lisboa, junto a la galería comercial Mayesi y centro de salud de la calle Jabonería. El local es de esquina y dispone de mucha luz natural. En el anuncio se presenta plano presentado al Ayuntamiento, donde se refleja que la vivienda dispondrá de 2 baños (en suite y cortesía). Fachada del edificio rehabilitada.

Ver más

Características

Ref.:
614830
Planta:
Media
Libre:
Tipo de inmueble:
Popular
Año de construcción:
1967
Año reforma edificio:
2005
Ver más
Precio Precio
145.000 €
Cuota mensual Cuota mensual
€ 459 / mes

Clase energética

D
D
D
D
D
D
D
D
D
Consumo de energia:
601 kWh/m² año
Emisiones:
108 Kg CO2/m² año
Registro:
10/295484.9/25
Válida hasta:
06/04/2035
Año de construcción:
1967

Servicios cercanos

Transporte público Transporte público
Parque Lisboa
Parque Lisboa
340 m
Alcorcón Central
Alcorcón Central
640 m
Estación de Alcorcón
Estación de Alcorcón
640 m
San José de Valderas
San José de Valderas
1,2 Km
Transporte público
110 m
Colegios Colegios
Dulce Regazo
120 m
Los Mofletes
180 m
C.E.I.P. Santiago Ramón y Cajal
200 m
Centro Educativo Villa de Alcorcón
200 m
Escuelas
260 m
Farmacias Farmacias
Farmacia
430 m
Lcda. Mª Victoria Rodríguez García
540 m
Farmacia Sapporo
610 m
Rus
610 m
Licenciado Juan J.Tienza
1,4 Km
Hospitales Hospitales
Centro de Salud Ramón y Cajal
220 m
Centro de Salud Doctor Trueta
380 m
Centro de Salud Miguel Servet
790 m
Hospital Fundación Alcorcón.
1,1 Km
Centro de Salud la Rivota
1,2 Km
Supermercados Supermercados
Eroski
110 m
Dia
150 m
Hiper Usera
190 m
Dia Market
240 m
Condis
480 m
Tiendas Tiendas
Tiendas
380 m
Calle Japón
650 m
Chino
900 m
El Buen Sabor
910 m
Prenatal
2,0 Km
Bar Bar
La Paloma
360 m
Café-bar Vico's Sandra
860 m
Bar Restaurante Celedonio
910 m
Jamon y Pan
990 m
La posada de Eva
1,0 Km
restaurantes restaurantes
Mesón A Lareira
330 m
Restaurantes
430 m
Terraza Verano CSD Parque de Lisboa
450 m
Cafetería CSD Parque de Lisboa (Verano)
450 m
Cafetería CSD Parque Lisboa
550 m
Ver más

Calcula tu hipoteca

Simple y sin compromiso
Entrada
%
al mes
Hipoteca
%
El resultado de esta simulación es orientativo. Los datos indicados no corresponden a condiciones reales de productos y no implican compromiso, obligación o vínculo jurídico-legal para el Grupo Tecnocasa.

Solicita un asesoramiento

Introduce tus datos
GRACIAS POR CONTACTAR CON NOSOTROS.
Esta oficina de Kìron se pondrá en contacto contigo lo antes posible para ofrecerte un asesoramiento financiero más completo y acorde a la información que nos has facilitado.
Franquiciado
Alcorcon 2012 Sl
Calle San José, 25 28921 Alcorcón (M)
Calle San José, 25 28921 Alcorcón (M) Zona: METRO PARQUE LISBOA - MAYESI - CANTARRANAS
LUNES A VIERNES DE 9,30 H A 14,00 H Y DE 17,00 H A 21,00. SÁBADOS DE 10,00 A 14,00 H

Nuestro equipo


  • Andres Porcel Cortes
    Colaborador

  • Carlos Carmena
    Franquiciado

  • Laura Calleja
    Auxiliar Administrativa

  • Andres Suarez
    Colaborador
Franquiciado
Alcorcon 2012 Sl
Calle San José, 25 28921 Alcorcón (M)

Franquiciado
Alcorcon 2012 Sl
Franquiciado
Alcorcon 2012 Sl

2025 Ibero Group Tecnocasa Services, S.L.U. - CIF B-65870776 - C/ Pallars, nº 1-3 Parque de Negocios Mas Blau II, 08820, El Prat de Llobregat (Barcelona-España). Red en franquicia - Cada sociedad franquiciada tiene su propio titular y es independiente del franquiciador.

Política de privacidad | Aviso legal | Pólitica de las Cookies | Información al consumidor | | Canal ético